Skip links

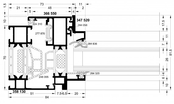
AWS 70 RL.HI

We Shape the Future from Today.

This website uses cookies to improve your web experience.