Skip links
Skip to primary navigation
Skip to content
Home
About
Products
Contact
Toggle navigation
Home
About
Products
Contact
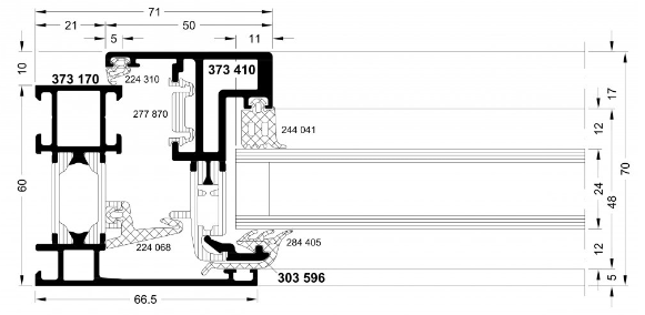
AWS 60 BS
We Shape the Future from Today.
Adding product to the cart!
Added to the cart!
AWS 60 BS
Categories:
Aluminum Window Systems
,
Thermal Insulated Hidden Wing Systems
,
Window Systems
Related Products
AWS 90 SI PLUS
Read more
AWS 65 WF
Read more
AWS 75 SI+
Read more
AWS 60
Read more
This website uses cookies to improve your web experience.
Accept
Adding {{itemName}} to cart
Added {{itemName}} to cart
Loading...